El estudio de diseño arquitectónico israelí Pitsou Kedem está detrás del diseño de este contemporáneo edificio residencial ubicado en el barrio francés de del Carmelo a Haifa en Israel.
Nombrada la Residencia Bauhaus, este interesante proyecto arquitectónico llama la atención de los alrededores por la agradable arquitectura volumétrica que muestra la casa.
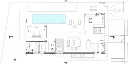
La superficie total del terreno es de 1.000 metros cuadrados, pero la casa ocupa menos de la mitad, 450 pies cuadrados. Su nombre es una oda a la arquitectura Bauhaus. La Bauhaus es una escuela artística de los años treinta que reflexionó enormemente sobre la arquitectura, en particular, instaurando un estilo desnudado, líneas derechas y un papel predominante de la función sobre la estética. El estilo se caracteriza por la uniformidad de color y acabados modestos y sencillos. Este proyecto, crea una línea que une el estilo contemporáneo con el espíritu de esa época pasada.


Esta residencia minimalista y sofisticada, al igual que el estilo Bauhaus, favorece la funcionalidad y no los ornamentos, creando una moderna colección de espacios aptos para un estilo de vida contemporáneo. La Residencia Bauhaus combina elementos nuevos y frescos con aquellos inspirados en la época de la arquitectura pre-nazi. Esto creó una fascinante residencia, perfectamente adaptada a su entorno.

Los colores y materiales de construcción utilizados en esta casa, tanto para el interior y el exterior, van de la gama del blanco al gris combinado con listones de madera. Las formas simples y limpias y la luz juegan un papel central en el diseño de interiores.
Fuente: https://www.decoist.com